HOME> 商品情報> 維持・補修・材料・機械> 本線> 2WAYドレイン(路面冠水対策用排水溝)
維持・補修・材料・機械

2WAYドレイン(路面冠水対策用排水溝)

特許 第5785049号

(株)ネクスコ・メンテナンス関東
商品概要
ロールドガッターの排水不良を改善します!
縦断勾配の緩い箇所で発生する冠水を内部の水路に落とし込み、接続された集水桝へ導くことで、道路冠水を防止します。
特徴・仕様

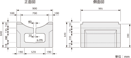
■ 皿形タイプ ■

型式520×240×995㎜  円形水路φ400相当  参考質量805kg

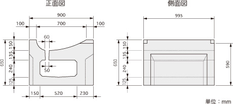
■ 偏心タイプ ■

型式520×240×995㎜  円形水路φ400相当  参考質量865kg
実績(販売・施工・導入)

当   社:
民間会社等:

404基
252基

ページトップへ